Skip to main content
Görgess tovább
Mátra hegység szíve, Parádsasvár központjában

Parádsasvár projekt

Nyugdíjas igényekre optimalizált, akadálymentes kialakítású 210+ apartman

Projekt áttekintés

A Petra Vita Parádsasvár lakópark a modern építészet és a természet harmóniáját kínálja. A Mátra lenyűgöző környezetében épülő komplexum négy ütemben valósul meg, prémium garzonoktól a tágas családi apartmanokig.

Ütemezés

  • Építés kezdete: 2026 tavasza
  • 1. ütem (58 garzon):
    58 garzon apartman
  • 2. ütem (160+ lakás):
    Ügyféligényre alapozva
  • 3. ütem (30+ apartman):
    Intézmény súlyú ellátás központ

Szolgáltatások

  • Egészségügyi központ (3. ütem)
  • Prémium éttermi szolgáltatások
  • Életviteli & kényelmi szolgáltatások

Alaprajzok és tervek

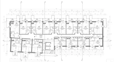
Parádsasvár földszint

Parádsasvár földszint

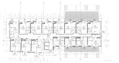
Parádsasvár 1. emelet

Parádsasvár 1. emelet

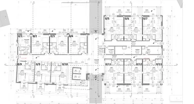
Parádsasvár 2. emelet

Parádsasvár 2. emelet

Parádsasvár 3. emelet

Parádsasvár 3. emelet